г. Санкт-Петербург
mail@joyshouse.ru
ДОМ ИЗ КЛЕЕНОГО БРУСА
Barn
S общая = 351м2
S жилая = 95м2
Кол-во спален: 3
домокомплект
тыс.руб.
теплый контур
тыс.руб.
под ключ
тыс.руб.
1 240 000
3 089 000
3 969 000
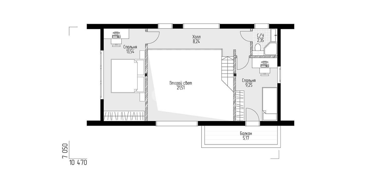
S общая = 104м2
ЗАКАЗАТЬ ЗВОНОК
Хотите, чтобы мы перезвонили?
Оставьте свои данные и свяжемся с вами!
Хотите поменять планировку?
Оставьте свои данные и свяжемся с вами!
О доме "Barn"
Если вы стремитесь окружить себя красотой в любом месте, больше не нужно идти на компромиссы. Мы докажем, для создания эстетичного пространства не обязательно иметь сотни квадратных метров.

Даже компактный дачный домик может быть современным и стильным.

Знакомьтесь с проектом «Barn».
Это прекрасный вариант для постоянного проживания небольшой семьи или дачи.

• 104 кв. м
• два этажа
• открытая планировка кухни, столовой и гостиной
• три спальни
• второй свет
• уютная открытая терраса и балкон
• минималистичный скандинавский дизайн
Тут каждый элемент на своем месте. Все организовано так, чтобы сделать жизнь удобной.

Мы сделали ставку на функциональность, но не позволили исчезнуть эстетике и изящности.

Проект «Barn» – сдержанность, спокойствие и упорядоченность, лаконичность форм и идеальное соотношение пространства и света.

Скандинавский стиль — это когда «просто» не значит «скучно». И он снова в тренде!
Комплектация
Домокомплект
Теплый контур
Дом под ключ
Проект дома
Домокомплект
Доставка
Проект дома
  • Эскизный проект вашего дома (ЭП)
  • Архитектурные решения (АР)
  • Проект на фундамент «Конструкции железобетонные» (КЖ)
  • Проект «Конструкции Деревянные» (КД)
  • План кровли с разрезом пирога
  • Проект остекления
  • Инструкцию по эксплуатации

Наш специалист выезжает к вам на участок, делает необходимые замеры и изучает все особенности ландшафта вашего участка, изучает подъездные пути и условия на строительной площадке. Предварительно размечает на плане расположение строения и планируемых коммуникаций на участке.
Домокомплект
  • Стеновой элемент (клееный профилированный брус в соответствии с проектом) сечением 205*185 мм, профиль "Немецкий"
  • Подкладная доска под первый венец (сечением 45*185 мм)
  • Нарезка чашек по проекту, сверление каналов под шпильки, нагеля, электрику
  • Стропильная система из клееных балок или сухой строганой доски (сечение по проекту)
  • Лаги и балки межэтажных перекрытий (сечение по проекту)
  • Лаги террас
  • Конструктивные клееные элементы (несущие балки, столбы)
  • Обсадная доска и брусок на оконные и дверные проемы
  • Антисептирование стропил, балок, обрешетки
  • Полный комплект крепежных и расходных материалов
      Отличительной особенностью нашего бруса является глубина профиля — 14мм (самый глубокий, теплый профиль из представленных на рынке), а количество шипов достигает 7, что обеспечивает максимальную защиту от ветра и делает ваш дом еще теплее. Для утепления углов мы используем материал Klimalan на основе овечьей шерсти и укладываем его по особой технологии с тройной защитой от продувания. На нашем производстве используется клеевая ЭПИ-система Kiilto с нулевой эмиссией формальдегида, разработанная в Финляндии. В отличие от других вариантов, представленных на рынке, она предназначается для производства наиболее ответственных клееных изделий из древесины
      Доставка
      Доставка входит в стоимость
      Домокомплект
      1 240 000 руб
      Сейчас вы можете приобрести домокомплект и проект дома Barn.

      Подробности уточняйте у вашего персонального менеджера.
      Наш телефон: +7 (994) 422-59-84

      Проект дома
      Доставка
      Домокомплект
      Кровля
      Окна и двери
      Сборка
      Проект дома
      • Эскизный проект вашего дома (ЭП)
      • Архитектурные решения (АР)
      • Проект на фундамент «Конструкции железобетонные» (КЖ)
      • Проект «Конструкции Деревянные» (КД)
      • План кровли с разрезом пирога
      • Проект остекления
      • Инструкцию по эксплуатации

      Наш специалист выезжает к вам на участок, делает необходимые замеры и изучает все особенности ландшафта вашего участка, изучает подъездные пути и условия на строительной площадке. Предварительно размечает на плане расположение строения и планируемых коммуникаций на участке.
      Доставка
      Доставка домокомплекта входит в стоимость
      Домокомплект
      • Стеновой элемент (клееный профилированный брус в соответствии с проектом) сечением 205*185 мм, профиль "Немецкий"
      • Подкладная доска под первый венец (сечением 45*185 мм)
      • Нарезка чашек по проекту, сверление каналов под шпильки, нагеля, электрику
      • Стропильная система из клееных балок или сухой строганой доски (сечение по проекту)
      • Лаги и балки межэтажных перекрытий (сечение по проекту)
      • Лаги террас
      • Конструктивные клееные элементы (несущие балки, столбы)
      • Обсадная доска и брусок на оконные и дверные проемы
      • Антисептирование стропил, балок, обрешетки
      • Полный комплект крепежных и расходных материалов
        Отличительной особенностью нашего бруса является глубина профиля — 14мм (самый глубокий, теплый профиль из представленных на рынке), а количество шипов достигает 7, что обеспечивает максимальную защиту от ветра и делает ваш дом еще теплее. Для утепления углов мы используем материал Klimalan на основе овечьей шерсти и укладываем его по особой технологии с тройной защитой от продувания. На нашем производстве используется клеевая ЭПИ-система Kiilto с нулевой эмиссией формальдегида, разработанная в Финляндии. В отличие от других вариантов, представленных на рынке, она предназначается для производства наиболее ответственных клееных изделий из древесины.
        Кровля
        • Стропильная система из сухой строганной доски
        • Обрешетка и контробрешетка
        • Полный комплект расходных и крепежных материалов
        • Гидроизоляция - супердиффузная мембрана Tyvek Soft
        • Сетка от насекомых
        • Пароизоляцияонная мембрана Juta
        • Утеплитель минераловатный Knauf Коттедж Термо
        • Финишное покрытие кровли - Металлочерепица М28 (Zn 275) PE-полиэстер Arcelor RR-32 т
        • Комплект вентиляционных проходок
        • Комплект водосточной системы
        • Снегозадержатель над крыльцом
        Окна и двери
        • Обсадные коробки для оконных и дверных проемов из клееного щита толщиной 36мм
        • Оконные блоки Veka/Rehau пятикамерный профиль т.70мм. (двухкамерный теплопакетом DS, цвет - белый, открывание - согласно проекту)
        • Комплект наружных отливов
        • Входная строительная дверь
        Сборка
        Сборка домокомплекта входит в стоимость.

        Теплый контур
        3 089 000 руб
        Цена указана за проект, домокомплект, доставку, кровлю, окна и двери, сборку.
        В стоимость не входя: фундамент, инженерия, дополнительные опции.

        Подробности уточняйте у вашего персонального менеджера.
        Наш телефон: +7 (994) 422-59-84

        Проект дома
        Доставка
        Домокомплект
        Кровля
        Окна и двери
        Сборка
        Фундамент
        Инженерия
        Дополнительные опции
        Проект дома
        • Эскизный проект вашего дома (ЭП)
        • Архитектурные решения (АР)
        • Проект на фундамент «Конструкции железобетонные» (КЖ)
        • Проект «Конструкции Деревянные» (КД)
        • План кровли с разрезом пирога
        • Проект остекления
        • Инструкцию по эксплуатации

        Наш специалист выезжает к вам на участок, делает необходимые замеры и изучает все особенности ландшафта вашего участка, изучает подъездные пути и условия на строительной площадке. Предварительно размечает на плане расположение строения и планируемых коммуникаций на участке.
        Доставка
        Доставка входит в стоимость
        Домокомплект
        • Брус клееный alkor.comfort 205х185мм в соответствии с проектом, из северной ели зимней заготовки
        • Полный комплект крепежных и расходных материалов

        Отличительной особенностью нашего бруса является глубина профиля — 14мм (самый глубокий, теплый профиль из представленных на рынке), а количество шипов достигает 7, что обеспечивает максимальную защиту от ветра и делает ваш дом еще теплее. Для утепления углов мы используем материал Klimalan на основе овечьей шерсти и укладываем его по особой технологии с тройной защитой от продувания. На нашем производстве используется клеевая ЭПИ-система Kiilto с нулевой эмиссией формальдегида, разработанная в Финляндии. В отличие от других вариантов, представленных на рынке, она предназначается для производства наиболее ответственных клееных изделий из древесины.
        Кровля
        • Стропильная система из сухой строганной доски
        • Обрешетка и контробрешетка
        • Полный комплект расходных и крепежных материалов
        • Гидроизоляция - супердиффузная мембрана Tyvek Soft
        • Сетка от насекомых
        • Пароизоляцияонная мембрана Juta
        • Утеплитель минераловатный Knauf Коттедж Термо
        • Финишное покрытие кровли - Металлочерепица М28 (Zn 275) PE-полиэстер Arcelor RR-32 т
        • Комплект вентиляционных проходок
        • Комплект водосточной системы
        • Снегозадержатель над крыльцом
        Окна и двери
        • Обсадные коробки для оконных и дверных проемов из клееного щита толщиной 36мм
        • Оконные блоки Veka/Rehau пятикамерный профиль т.70мм. (двухкамерный теплопакетом DS, цвет - белый, открывание - согласно проекту)
        • Комплект наружных отливов
        • Входная строительная дверь
        Сборка
        Сборка домокомплекта входит в стоимость.

        Фундамент
        • Ростверк на буронабивных сваях
        Какой именно тип фундамента будет в доме, определят наши специалисты, основываясь на данных геологических изысканий и топосъемке участка. В случае удорожания стоимости фундамента по результатам изысканий вы будете доплачивать только разницу.
        Инженерия
        • Инженерные системы кровли
        • Накладные, расходы
        • Инженерные обеспечение
        Дополнительные опции
        • Терраса площадью 8 м2, монтаж в соответствии с проектом - 25 000 руб/м2
        • Устройство монолитной стяжки на 1 этаже - по запросу
        • Ламинация окон с внешней стороны "под дерево" - по запросу
        Дом под ключ
        3 969 000 руб
        В стоимость входит работа, все сопутствующие и расходные материалы, проживание рабочих (бытовой городок, биотуалет, навесы для складирования материалов), доставка, погрузочно-разгрузочные работы. Срок по Договору составляет 4-6 месяцев.

        Гарантия 5 лет
        Подробности комплектации уточняйте у вашего персонального менеджера.
        Наш телефон: +7 (994) 422-59-84

        • Уникальные кровельные узлы, обеспечивающие высокий уровень шумоизоляции.
        • Расчёт снеговой и ветровой нагрузки на силовую конструкцию кровли, выполненный штатным конструктором в системе СКАД.
        • Сушка в мягком режиме в собственных сушильных камерах.
        • Сортировка по качеству.
        • Однослойная диффузионная мембрана из нетканого полиэтилена высокой плотности.
        • Водонепроницаемая.
        • Ветронепроницаемая.
        • Паропроницаемая.
        • Температурная стабильность - до + 100°C (очень важно при использовании металлочерепицы).
        • Скользящие опоры.
        • Усиленные уголки из оцинкованной стали 2 мм.
        • ППУ лента под контробрешетку.
        • Стальные оцинкованные саморезы производства ОАО "Речицкий Метизный Завод".
        • Снегозадержатели предназначены для защиты людей и их имущества от лавинообразного схода снега с кровли.
        • Оцинкованное снегозадержание окрашенное порошковой краской в цвет покрытия кровли.
        • Ставим дополнительные опоры для увеличения возможной нагрузки на снегозадержание.
        • Схема расположения рассчитана нашими конструкторами индивидуально для каждого проекта.
        • Контроль качества в 3 этапа с фотофиксацией в личный кабинет:
        • Стропильная система, пароизоляционная пленка.
        • Утепление.
        • Финишное покрытие, водосточная система.
        • Толщина полимерного покрытия - 25 мкм.
        • Толщина металла - 0,5 мм.
        • Защитный слой Zn 140 г/кв.м.
        Негорючие, гидрофобизированные, легкие теплоизоляционные плиты из каменной ваты на основе базальтовых пород от финского производителя Paroc, изготовляемые по требованиям ЕС.
        • Многослойная паронепроницаемая армированная плёнка из полиэтилена с алюминиевым рефлексным слоем, защищённым прозрачным полиэфирным покрытием, повышает тепловое сопротивление здания за счет отражения теплового излучения внутрь помещения.
        • Обеспечивает 100 % надежность от проникновения водяного пара в строительную конструкцию.
        • Обеспечивает переотражение внутрь помещения до 50% тепловой энергии благодаря рефлексному слою, что снижает ваши затраты на отопление зимой.
        • Проклейка стыков пленки двусторонним скотчем.
        Трубы и желоба из оцинкованной стали с полимерным покрытием PURAL, толщина стали - 0,5 мм.
        Планируете начать стройку в 2021 году?
        ЗАФИКСИРУЙТЕ ЗА СОБОЙ ЦЕНЫ 2020 ГОДА:
        Важные особенности
        В нашем производстве мы используем пиломатериалы исключительно из северного Костромского хвойного леса, заготовленного в зимний период.

        В этом регионе особенно холодные и продолжительные снежные зимы. Костромская область всегда славилась своими лесами, их высоким строительным качеством. И в настоящее время область находится на одном из первых мест по заготовке древесины.

        Благодаря преобладанию низких температур, короткому лету и длинной зиме ежегодный прирост древесины происходит медленно.

        Расстояние между годовыми кольцами минимально, что и делает пиломатериалы из северного леса особенно прочными и надежными. Соответственно, пиломатериалы, изготовленные из зимнего северного бревна, в меньшей степени подвержены деформации и трещинам, которые характеризуют влажную — летнюю — древесину. Вместе с соком ствол дерева также покидают насекомые и вредители, а минимальная доза крахмала предотвращает процесс гниения. Таким образом, дома из зимнего северного леса служат значительно дольше, чем дома из летнего.
        Особое внимание мы уделяем утеплению углов дома – все угловые соединения выполнены с ветровым замком и тройной герметизацией с применением уплотнителя на основе овечьей шести Klimalan (Германия), что делает ваши дома на 20% теплее
        аналогов.

        Утепление деревянного дома межвенцовым утеплителем, в основе которого лежит натуральная шерсть, — это возможность сделать угол дома герметичным и теплым. По сравнению, например, с использованием льняного или джутового утеплителя, Klimalan показывает более эффективные характеристики, что подтвердили тесты, проведенные в одном из исследовательских институтов Австрии.

        Основные преимущества натурального утеплителя Klimalan:

        • Хорошая эластичность, которая достигается структурой волокна овечьей шерсти. Такой утеплитель для стен имеет би-спиральный диммер, который позволяет уплотнителю Klimalan сжиматься и разжиматься. Соответственно, дом станет теплее, при этом его эксплуатация будет экономичной.
        • Надежность и стойкость к воздействию внешней среды. Межвенцовый утеплитель из овечьей шерсти стоек к воздействию влаги, при этом возводить дом можно даже в дождливую погоду. Хорошие защитные свойства материала Klimalan позволят защитить стены от гниения и образования грибка.
        • Обеспечение теплого стыка между брусьями. Например, традиционные льняные или джутовые утеплители для стен показывают более низкую эффективность по сравнению с шерстяным полотном Klimalan. Его использование позволяет сохранить в помещении тепло, что достигается особенным расположением волокон.
        • Экономичность. Благодаря применению межвенцового утеплителя Klimalan можно существенно сэкономить на затратах на отопление дома. Кроме того, монтаж выполняется быстро и надежно. Транспортировать утеплитель легко и просто.
        • Экологичность. Натуральная основа — мытая овечья шерсть — залог того, что в материалах Klimalan нет химии и примесей. А значит, ваше жилье будет построено в соответствии с существующими экологическими нормами.
        Помимо качественного утеплителя, важным является наличие в угловых соединениях «ветровых замков», защищающих от сквозного продувания углов и попадания влаги при косых дождях.

        Мы используем уникальную 3D-технологию утепления углов, которая подразумевает совершение трех технологических операций по утеплению: утепление горизонтальных поверхностей угловой чаши, утепление вертикальных поверхностей угловой чаши и герметизация ветрового замка. Подробнее ознакомиться с этой технологией вы можете в наших офисах и шоурумах.
        Мы используем клееный брус с многозубчатым профилем (5-7 кратное уплотнение и уникальная глубина шипа 14мм), что гарантирует лучшую защиту стен от продувания.
        На рынке представлено 2 основных типа профилей клееного бруса: т.н. «финский профиль» и «австрийский или многозубчатый профиль». Основные их отличия - количество шипов (пазов) на брусе и их глубина.

        Для «финского» профиля характерно наличие 1-2 пазов при небольшой глубине (до 5-7мм). Такой профиль бруса значительно легче собирается, но требует обязательной прокладки утеплителя в пазы по всей длине бруса. Утеплитель укладывают с помощью ручного труда, как правило, на стройплощадке. И некачественная укладка утеплителя может очень сильно повлиять на тепло будущего дома.

        «Многозубчатый» профиль содержит от 5 до 7 шипов и их глубина обычно составляет 10-14мм. Эта технология не подразумевает дополнительного утепления, так как имеющихся шипов большой глубины уже достаточно для обеспечения теплой непродуваемой стены. Очевидный плюс такого профиля - отсутствие зависимости от ручного труда - все пазы делаются на заводском оборудовании, что гарантирует точность соединений между брусьями.

        Мы используем самую теплую версию «многозубчатого» профиля - 7 шипов глубиной 14мм, в отличие от большинства строительных компаний, которые выбрали профиль с глубиной шипа 10-12мм и 5-6 шипами. Наш профиль намного сложнее в сборке, так как обеспечивает максимально плотное сопряжение внутри стены. Поэтому все наши строительные бригады и бригады наших дилеров проходят специальное обучение и постоянный контроль по работе с таким профилем бруса, что позволяет строить для вас самые теплые дома.

        В вашем доме мы используем только сухие и клееные пиломатериалы собственного производства – это дополнительная гарантия отдеформаций и появления грибка.

        Сушка пиломатериалов – одна из важнейших операций технологического процесса деревообработки, определяющая во многом качество изделий из древесины. Дерево, в котором содержится много воды, часто поражается грибками и загнивает, при монтаже оно трескается, меняет форму и размеры.

        Избежать этих проблем получится, только если применять сухой пиломатериал:

        • Использование сухой строганой доски, сухого бруска, а также других высушенных пиломатериалов значительно снижает степень усадки и, соответственно, риск появления деформаций.
        • Процесс обработки сухого пиломатериала существенно легче, что повышает и качество обработки. При последующей окраске на такой древесине не образуется ворс (в отличие от древесины естественной влажности)
        • Использование сухих и клееных строительных и отделочных материалов практически исключает риск появления трещин, которые возникают в процессе усушки.
        • Сухие пиломатериалы, являются крайне неблагоприятной средой для появления грибка и плесени
        • Пиломатериалы, прошедшие через процесс сушки, теряют в весе и немного в размерах, что существенно упрощает не только транспортировку, но и процедуру строительства.
        • Клееная древесина обладает рядом дополнительных преимуществ: повышенная прочность и долговечность, прекрасный внешний вид и улучшенная пожароустойчивость.
        Важно отметить, что вся древесина для вашего дома выпускается на нашем собственном производстве в Костромской области и поставляется на строительную площадку минуя посредников.

        Мы осуществляем полный цикл переработки древесины, а все отходы производства используем для получения необходимой тепловой энергии.

        Это позволяет существенно сократить стоимость готового комплекта дома при сохранении высокого качества.
        Заказывая полный комплекс работ по строительству дома, вы получаете единую гарантию 10 лет от завода-производителя.

        Строительство дома является сложным комплексным процессом, в котором задействовано много участников. Зачастую клиенты обращаются к нескольким подрядчикам для выполнения разных видов работ, покупают материалы у различных поставщиков. Такой подход сулит экономию, но она является мнимой. Дополнительные затраты времени, а также издержки на логистику и координацию действий подрядчиков сводят на «нет» первоначальную экономию.

        Но основные проблемы могут возникнуть уже в процессе эксплуатации жилища. Дом - это сложный организм, состоящий из множества взаимосвязанных систем. И сбой в работе одной из них может привести к неполадкам в других. Когда отсутствует единый подрядчик и поставщик, способный нести ответственность за качество всего строения в целом, процесс поиска виноватых в той или иной поломке может быть очень долгим и дорогостоящим.

        Являясь заводом-изготовителем комплектов деревянных домов, «Алькор» готов брать на себя функции генерального подрядчика при строительстве вашей загородной резиденции «под ключ». При этом все вопросы, связанные с обеспечением материалами, контролем за сроками и качеством выполнения работ мы берем на себя. Вам лишь остается заехать в полностью готовый дом, построенный в пределах заранее оговоренного бюджета и сроков. Дополнительно предоставляется расширенная гарантия на дом сроком на 10 лет.

        Важно отметить, что данная услуга не требует дополнительных расходов с вашей стороны и предоставляется бесплатно при заказе строительства дома с отделкой и инженерией «под ключ».

        При заказе строительства дома через наших авторизованных дилеров вы также можете воспользоваться услугами единого подрядчика.
        При монтаже кровли мы обеспечим надежную защиту от вздутий кровельного ковра, намокания пирога, появления плесени, грибка, а также образования наледей и сосулек в зимний период.

        В процессе строительства деревянного дома, особенно с мансардным этажом, очень важно обеспечить устройство вентилируемой кровли, в которой потоки воздуха входят через нижние свесы, а выходят через конек, при этом с ними выводятся все излишки влаги, которые накапливаются под подкровельным пространством в утеплителе. Вентиляция в этом случае может быть также принудительной, для чего устанавливаются крышные вентиляторы, покрытие рекомендуется легкое, желательно имеющее волнистую фактуру.

        При дальнейшей эксплуатации происходит полное просушивание всех элементов кровли, в том числе плит перекрытия, теплоизолятора. Это позволяет полностью снять опасность возникновения гнили, плесени, грибка, которые очень опасны для общей
        конструкции крыши.

        Качественное утепление кровли и удаление влаги из подкровельного пространства также уменьшают образование наледей и сосулек в зимний период.
        Соблюдение технологии армирования фундамента - залог надежности и долговечности будущего дома.

        Углы и примыкания ленточного фундамента являются местами концентрации разнонаправленных напряжений. Неправильная стыковка продольной рабочей арматуры на участках примыканий и по углам может привести к появлению поперечных трещин,
        расслоений и отколов в этих проблемных зонах. Правильное армирование ленточного фундамента обеспечивает сопротивляемость железобетонной конструкции силам сжатия и растяжения на всех его участках, является залогом надёжности и долговечности здания.

        Наши специалисты выполняют армирование фундаментов в соответствии с положениями СП 52-101-2003, в котором перечислены все допустимые способы таких угловых соединений арматуры:

        • Стыковка арматуры без сварки, внахлёст.
        • Сварка арматуры.
        • Применение механических устройств, или резьбовых муфт.
        Жёсткость соединения арматуры на углах, или примыканиях может быть обеспечена только этими способами. Соединения при помощи вязки перекрестий при армировании углов ленточного фундамента не допускаются. В этом случае происходит угловой разрыв арматурного каркаса и потеря его целостности.

        Для усиления угловых арматурных стыков можно применять П- и Г-образные элементы, изготовленные из арматурных прутьев, применяемых для устройства продольной (рабочей) арматуры. Для равномерного распределения нагрузок на углах ленты, а также в области примыканий, делается жёсткая связка внутренней и внешней продольной арматуры.
        Made on
        Tilda